Schultheiss Quartier
Mit der Eröffnung des Shoppingcenters Schultheiss Quartier auf dem ehemaligen Gelände der Schultheiss-Brauerei ist im Jahr 2018 ein neuer großer Akteur ins Gebiet gezogen.
Das eindrucksvolle Backsteinensemble der ehemaligen Schultheiss-Brauerei zwischen Perleberger-, Turm- und Stromstraße zählte zu den prägendsten Bauwerken in Moabit. Zusammen mit dem ehemaligen Filmtheater Turmpalast, dem Café Vaterland, einem Biergarten und diversen Bierlokalen bildete das Schultheiss-Areal in der ersten Hälfe des 20. Jahrhunderts das Herz der Moabiter Gastronomie- und Unterhaltungsindustrie. Nach Schließung von Kino und Brauerei sowie gleichzeitigem Substanzverfall verlor das Areal seit den 80er-Jahren seine Ankerfunktion für die Geschäftsstraße.
2006 begannen die ersten Planungen für die Entwicklung des ehemaligen Brauereigeländes zum Shoppingcenter Schultheiss-Quartier. Als der spätere Projektträger HGHI Holding GmbH die vorgesehene Baumasse reduzierte und den Erhalt eines großen Teils der Altbebauung und einen öffentlich zugänglichen Innenhof vorsah, wurde das Vorhaben genehmigungsfähig. Vor Beginn der Baumaßnahmen mussten die Bestandsmieter:innen umziehen. Die betroffenen Gewerbetreibenden wurden hinsichtlich der Bereitstellung von Ausweichflächen und des Ausgleichs wirtschaftlicher Härten durch das Geschäftsstraßenmanagement begleitet und unterstützt.
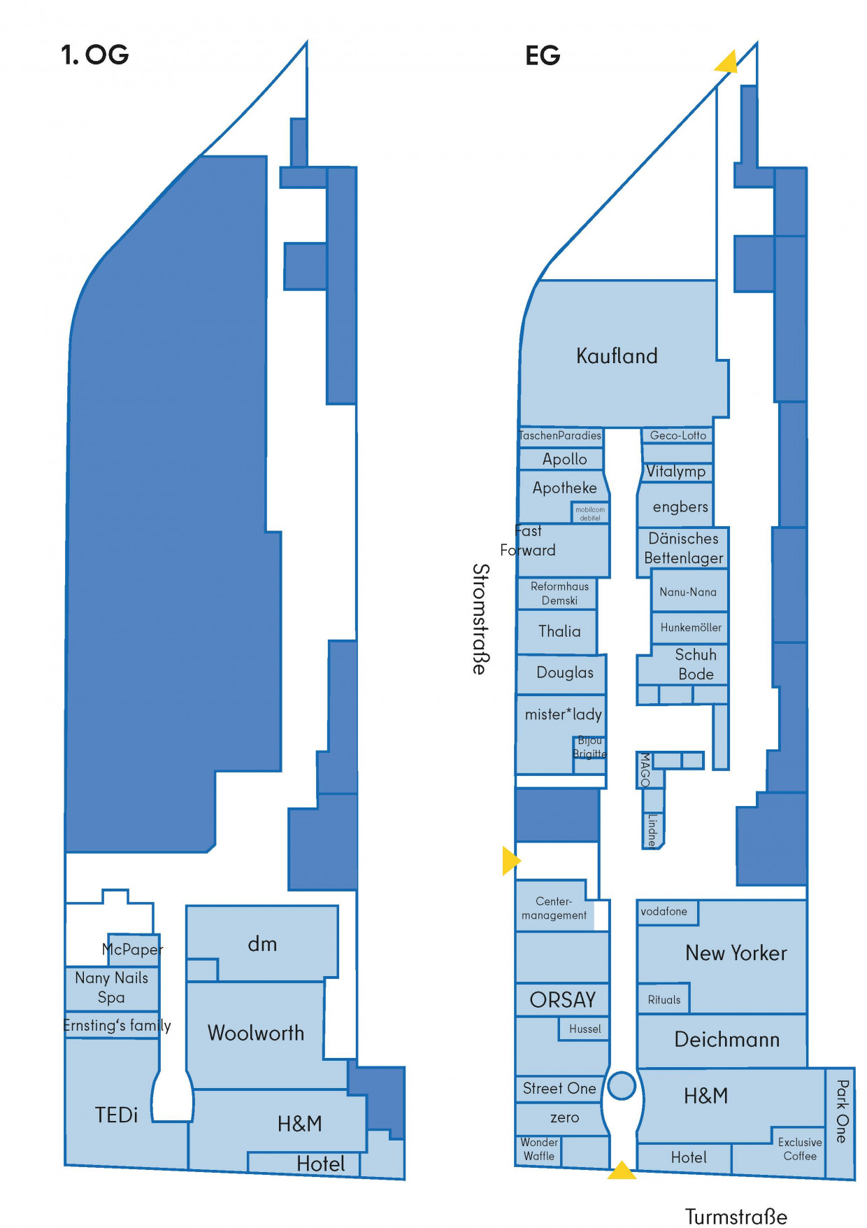
Mit der Eröffnung des Schultheiss Quartiers im Jahr 2018 wurde mit ca. 30.000 Quadratmetern Einzelhandelsflächen Raum für 110 neue Geschäfte sowie ein Hotel mit ca. 250 Betten geschaffen. Die Remisen im hinteren Teil des Gebäudekomplexes wurden für Büro- und Gewerbenutzung saniert. Die Umsatzerwartungen konnten jedoch nicht erfüllt werden, da die Gewerbeeinheiten zu keinem Zeitpunkt voll vermietet waren. Daher wurde das erste Obergeschoss des Shoppingcenters zu Büro- und Gewerbeflächen umgebaut, was zu einer erheblichen Reduktion der Bruttoverkaufsfläche geführt hat.
Für das Geschäftszentrum Turmstraße birgt das Projekt sowohl Chancen als auch Risiken. Die Zentrumsfunktion wurde durch die neuen Geschäfte, der Steigerung der Warenvielfalt und den Erhalt der Kaufkraft im Gebiet gestärkt. Die vielfach geäußerten Befürchtungen, dass sich das Schultheiss Quartier bezüglich Abwanderung und Konkurrenz negativ auf die Geschäftsstraße auswirken könnte, konnten bislang nicht bestätigt werden.

Schultheiss Quartier Lageplan 2021